Osnovna delatnost preduzeća “Aqua-mdm plus” d.o.o. je izvođenje poslova projektovanja, bušenja i uvođenja bunara u eksploataciju za namene prema potrebama Investitora (vodosnabdevanje, protiv-požarna zaštita obejkata, navodnjavanje poljoprivrednih površina, snižavanje nivoa podzemnih voda za potrebe gradnje ,izrada bušotina za Geotermalne Sonde,Revitalizacija bunara i dr.).

Ove vrste poslova i procedure za njihovu realizaciju su propisani Zakonom o rudarstvu i geološkim istraživanjima i Zakonom o planiranju i izgradnji, kao i pratećim podzakonskim aktima u vidu pravilnika i uredbi.

Pravilna realizacija podrazumeva sledeće faze :

  • Faza projektovanja bunara
  • Faza bušenja bunara
  • Faza opremanja bunara
  • Faza praćenja eksploatacije bunara
  • Faza održavanja bunara

FAZA 1. PROJEKTOVANJE BUNARA

Ovo je prvi i najvažniji korak koji ima za cilj sagledavanja mogućnosti i načina obezbeđenja količina podzemnih voda prema iskazanim potrebama u vodi od strane Investitora kao budućeg korisnika.

Cilj ove faze je da se detaljno sagledaju svi početni uslovi i ograničenja za obezbeđenje potreba u vodi, a koji direktno zavise od potencijala vodonosne sredine u kojoj su akumulirane podzemne vode koje bi se eksploatisale. Iz tog razloga je veoma važno da se u početku definišu svi zahtevi od strane Investitora, a to su količine podzemnih voda koje su potrebne, zahtevi u pogledu kvaliteta vode i namena korišćenja, odnosno da se definiše projektni zadatak.

Na osnovu usvojenog projektnog zadatka, pristupa se fazi izrade projekta primenjenih hidrogeoloških istraživanja, u kojem se tačno definiše način realizacije i očekivani rezultati.

Zakonom o rudarstvu i geološkim istraživanjima (“Službeni glasnik Republike Srbije”, broj 101/2015, 95/2018-dr. zakon i 40/2021) propisan je postupak dobijanja rešenja kojim se odobrava izvođenje primenjenih hidrogeoloških istraživanja, kao i svih drugih aktivnosti na utvrđivanju rezervi podzemnih voda i uslova njihove eksploatacije.

Tok administrativnog postupka koji za Investitora vodi naš stručni tim je sledeći :

  • Dobijanje saglasnosti za pravo korišćenja podataka i rezultata osnovnih geoloških istraživanja za širu zonu na kojoj se planira bunar/bunari, odnosno za lokaciju na kojoj se formira istražni prostor izvorišta podzemnih voda.
  • Dobijanje uslova za projektovanje od nadležnog zavoda za zaštitu prirode i zavoda za zaštitu spomenika kulture.
  • Izrada Projekta primenjenih hidrogeoloških istraživanja.
  • Tehnička kontrola projekta sa izradom izveštaja.
  • Na osnovu izraženog projekta nadležni organ (Ministarstvo rudarstva i energetike ili Pokrajinski sekretarijat za energetiku, građevinarstvo i saobraćaj) izdaje rešenje kojim se odobrava izvođenje istraživanja.
  • Imenovanje od strane Investitora izvođača radova i stručnog nadzora.
  • Prijava početka izvođenja istraživanja nadležnim republičkim, pokrajinskim i lokalnim institucijama.

Tek nakon svega navedenog, može se pristupiti realizaciji bušenja bunara.

Hidrogeološki profil A

Primer hidrogeološkog profila sa položajima vodonosnih slojeva.

FAZA 2. BUŠENJE BUNARA

Bušenje bunara se izvodi prema projektovanim tehničkim uslovima i metodologiji i obuhvata sledeće aktivnosti:

  • Bušenje istražne bušotine do projektom predviđene dubine.
  • Geoelektrična karotažna merenja u istražnoj bušotini u cilju utvrđivanja litološkog profila terena i tačnih intervala vodonsnih slojeva.
  • Formiranje tehničke bunarske konstrukcije na osnovu sprovednih prethodnih radova.
  • Proširivanje istražne bušotine na završni prečnik.
  • Ugradnja pripremljene bunarske konstrukcije.
  • Ugradnja filterskog zasipa od kvarcnog granulata određene efektivne veličine zrna.
  • Ugradnja glinenog tampona.
  • Ispiranje, razrada i dezinfekcija bunara sa ciljem čišćenja od zaostalih nečistoća koje su nastale tokom bušenja.
  • Hidrodinamičko testiranje bunara sa ciljem dobijanja podataka o optimalnom kapacitetu bunara i odabira ostale hidromašinske i elektro-opreme bunara.
  • Izrada tehničke dokumentacije o izvedenim radovima i dobijenim rezultatima.
Primer izvedenog bunara

Primer izvedenog bunara dubine 206,0m.

Primena programskog paketa za obradu podataka hidrodinamičkog testiranja bunara

Primer primene programskog paketa za obradu podataka hidrodinamičkog testiranja bunara.

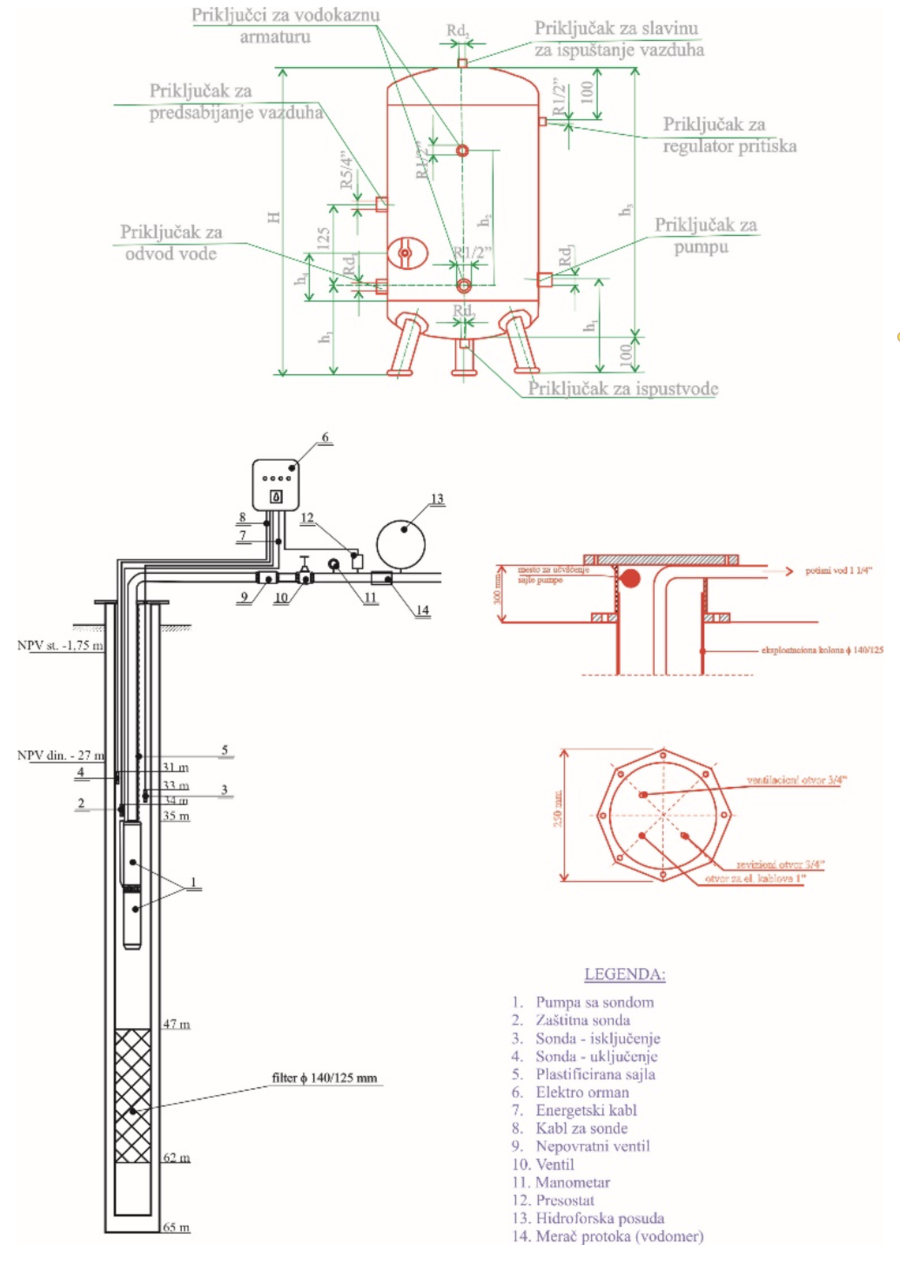
FAZA 3. OPREMANJE BUNARA

Nakon završetka bušenja i kompleksnog ispitivanja bunara, pristupa se izradi projektne dokumentacije za opremanje i uvođenje bunara u eksploataciju, prema Zakonu o planiranju i izgradnji. Za postojeće bunare, izrađujemo izveštaje i projekte zatečenog/izvedenog stanja, sa ciljem njihove legalizacije.

Izvođački radovi na opremanju bunara imaju tri međusobno povezane celine i to:

  • Hidro-građevinsko opremanje (bunarske kućice, šahte, ploče sa haubom i dr. tipovi nadgrađa)
  • Hidro-mašinsko opremanje (bunarske pumpe, potisi, merno-regulacione linije i dr.)
  • Elektro-energetsko i upravljačko opremanje (napojni ormani energetike, frekventi regulatori, regulatori pristiska i dr.)
Opremanje bunara 1
Opremanje bunara 2 Opremanje bunara 3
Opremanje bunara 4 Opremanje bunara 5
Opremanje bunara 6 Opremanje bunara 7

Primeri izgleda opremanja bunara za eksploataciju.

FAZA 4. PRAĆENJE EKSPLOATACIJE BUNARA

Nakon uvođenja bunara u eksploataciju i povezivanja na nov/postojeći sistem vodovodne mreže i razvoda, pristupa se fazi praćenja svih parametara režima eksploatacije. Ove aktivnosti su definisane Zakonom o rudarstvu i geološkim istraživanjima, Pravilnikom o utvrđivanju i razvrstavanju rezervi mineralnih sirovina I Pravilnikom o sadržini elaborata o uslovima eksploatacije podzemnih voda.

Na osnovu podataka praćenja parametara režima eksploatacije, izrađuje se Elaborat o rezervama podzemnih voda, koji se zvanično predaje nadležnom organu Ministarstva ili Pokrajinskog sekretarijata na usvajanje. Dokument se prezentuje Komisiji za utvrđivanje rezervi mineralnih sirovina i na osnovu istog se dobija Rešenje o utvrđenim i overenim rezervama. Elaborat o rezervama koji za Investira izrađuje naš stručni tim, se svake pete godine dostavlja nadležnom organu, pa je i iz tog razloga potrebno redovno vršiti praćenje parametara režima eksploatacije prema zadatom petogodišnjem programu.

Uz našu koordinaciju i obuku lica Investitora, vrši se monitoring eksploatacije. Sve merene vrednosti i dinamika monitoringa se vodi kroz zvaničan dokument “Knjiga evidencije o stanju rezervi i resursa podzemnih voda”, koja se predaje do 31.03. tekuće godine za prethodnu godini nadležnom državnom ili pokrajinskom organu.

Jedino i samo na taj način se vodi stalna briga o bunaru i jedino se tako mogu na vreme uočiti eventualni problemi u eksploataciji (pad nivoa vode u bunaru, smanjenje kapaciteta bunara, promene u kvalitetu podzemnih voda, pojava peska u vodi i dr.).

Sve ove promene ukazuju i daju informacije o potrebnom stepenu održavanja bunara tokom njegovog eksploatacionog perioda.

FAZA 5. ODRŽAVANJE BUNARA

Bunar kao i svaki tehnički objekat ima svoj vek trajanja i da bi što duže bio u dobrom stanju, potrebno ga je održavati na ispravan način.

U tom smislu od samog početka njegove eksploatacije treba pratiti osnovne parametre, a to su količine vode koje se crpe, nivo podzemne vode u bunaru i kvalitet podzemnih voda.Zbog velikog iskustva i saznanjamožemo okvirno da procenimo potreban stepen i intervale održavanja bunara u zavisnosti od područja u kome se nalaze.

Sve podzemne vode imaju određen stepen negativnog dejstva na stanje bunarske konstrukcije, potisnog voda na koji je ovešana bunarska pumpa i dalje na svu osatlu opremu u jednom sistemu vodosnabdevanja.Promene se ogledaju u procesima kolmiranja i inkrustracije filterskog dela konstrukcije, a kod čeličnih konstrukcija i njihovu koroziju, zatim smanjenje propusne moći cevovoda, promene u kvalitetu vode koja se eksploatiše tokom vremena i dr.

Intenzitet i dinamika ovih promena u prvom redu zavise od prirodnog kvaliteta podzemnih voda, a potom i od režima eksploatacije, odnosno od zavise i od ljudskog faktora.

Kolmiran filterski deo bunara Taloženje unutar bunarske konstrukcije

Kolmiran filterski deo bunara

Taloženje unutar bunarske konstrukcije

Korozija potisne kolone Taloženje u cevima

Korozija potisne kolone

Taloženje u cevima

Od analize procesa i sinteze pojavnih obilika starenja bunara zavisi tehnički uslov – postupak regeneracije zastarelih bunara, a kod prostornog planiranja izgradnje novih bunara ili izvorišta sagledavaju se tehnički uslovi za izgradnju novog eksploatacionog vodnog objekta. Za objektivizaciju postupka revitalizacije potrebno je poznavanje tehničkog profila bunara, početnih parametara hemijskog kvaliteta vode, početnih parametara eksploatacije, kao i nekoliko preseka ovih parametara u vremenu. Postupak revitalizacije može biti „složen“ ili „uprošćen“, zavisno od utvrđenog uzroka starenja: korozija ili obaranje ili dijageneza taloga – inkrustacija ili oba procesa združeno; stepena razvoja procesa: unutrašnji, spoljašnji ili kontaktni; tipom gela ili mineralne soli i njegovim stepenom dijageneze: inkrustacija, kolmiranje ili fluidizacija; konstruktivnih elemenata bunara: hermetičnost prostora iza eksploatacione cevi; tip konstrukcije (Norton ili upušteni filter – Lyner) itd.

Složena revitalizacija inkrustacije ili intenzivnijeg kolmiranja prijemnog dela bunara zahteva primenu tehničkih uslova:

  • Razaranje oksidansima deponovanog taloga i njegovo uvođenje u rastvor (dekompozicija taloga) a zatim okrupnjavanje razorenog taloga (flokulacija). Oboreni talog u taložnik bunara izbacuje se odgovarajućim crpnim sistemom ili upumpavanjem vode (flotacija);
  • Recirkulaciono ispiranje konstrukcije filtera sa povremenim delovanjem oksidansima ili kondicioniranjem 2-4 časa;
  • Stabilizacija agresivnih komponenti u vodi;
  • Hidrodinamička merenja i utvrđivanje otpora u zoni bunara. Komparacija rezultata sa početnom eksplotacijom;
  • Izrada tehničke dokumentacije za dalje održavanje bunara u eksploataciji.

Uprošćenja revitalizacija primenjuje se kod pojave fluidalnog taloga vezanog za limonitske prevlake ili organogeno-mineralni mulj gvožđevitog sastava. Ovo je posebno karakteristično za vode koje sadrže preko 0,5 mg/l ukupno rastvorenog gvožđa. Tehnički uslovi za primenu uprošćene revitalizacije kod bunara sa subarterskom i arteskom izdani, imaju neznatna odstupanja. Bunarske konstrukcije potrebno je primeriti hemijsko-fizičkom kvalitetu  podzemnog vodnog resursa iz koga je predviđena eksploatacija podzemne vode. Tamo gde je intenzitet starenja bunara veći potrebno je primeniti neutralne bunarske konstrukcije koje garantuju konstantan hemijski kvalitet vode u vremenu; male oscilacije kapaciteta; primerenost propusnosti filterskog dela filtracionim odlikama hidrogeološkog kolektora, karakteristikama zasipnog materijala i onemogućavanje pojave sufozije i erozije zasipa bunarske konstrukcije i inertnost na elektrohemijsku koroziju ili procese dekompozicije; jednostavnost  održavanja konstrukcije bunara i njena prohodnost za radove regeneracije ili fizička otpornost za montažno-demontažne radove.

Bunare kod kojih revitalizacija nije uspela potrebno je likvidirati po posebno utvrđenim tehničkim uslovima.

METODOLOGIJA

Svoje specijalizovane radove AQUA-MDM PLUS izvodi u dve faze:

  • Referentna merenja sa izradom odgovarajućih programa – instrumentacija;
  • Izvođenje radova posle verifikacije Programa sa izradom tehničkog izveštaja i garancijskim uslovima.

U metodološkom pristupu pre izrade odgovarajućih programa snima se ili utvrđuje:

  • Stanje u bunaru za utvrđivanje deformacija na filteru i ocenu obima kolmirajuće materije;
  • Utvrđuje se tip kolmirajuće materije odabiranjem i analizom taloga i određuje tretman;
  • Utvrđuje se stepen atrofije bunara, opreme u bunaru i sistema distribucije vode;

Na bazi prethodnog rada AQUA-MDM PLUS obrađuje programe ili projekte revitalizacije ili druge tehničke dokumentacije za sagledavanje potrebnih sredstava za njihovu realizaciju. Realizuje radove po programima ili projektima HFR ili samo utvrđuje referentne parametre u konstrukciji (kalibriranje, prohodnost, visina taloga, reometrija, podvodno snimanje itd.), utvrđuje hidrodinamičke parametre bunara Q= f(S) i q= f(Q/S) i vrši radove HFR.

Kamera za snimanje bunara do 500m dubine 1 Kamera za snimanje bunara do 500m dubine 2

Kamera za snimanje bunara do 500m dubine

Primer snimaka bunara 1 Primer snimaka bunara 2

Primer snimaka bunara

Za postupak revitalizacije koriste se efikasna oksidaciona sredstva koja nemaju štetnog uticaja na bunarsku konstrukciju, lako se ispiraju – razređuju i ne deluju toksično na ljudski organizam –  O2, NaOCl, NaOH, MnO2, Ca(OH)2, Al2(SO4)3.Primenom ovih fizičko-hemijskih preparata moguće je sa garancijom izvršiti: dekolmaciju pojave začepljenja filterskog dela bunara, povećanje kapaciteta bunara do optimalnog kapaciteta koji daje kaptirana vodonosna sredina, popravku hemijskog kvaliteta vode do granice koncentracije pojedinih jona koja je utvrđena neposredno nakon izgradnje bunara.

Inkrustriran i kolmiran filterski deo bunara Revitalizovan filterski deo bunara

Inkrustriran i kolmiran filterski deo bunara

Revitalizovan filterski deo bunara


Radnička 33, Veternik | tel:+381 (0) 64 50 700 66